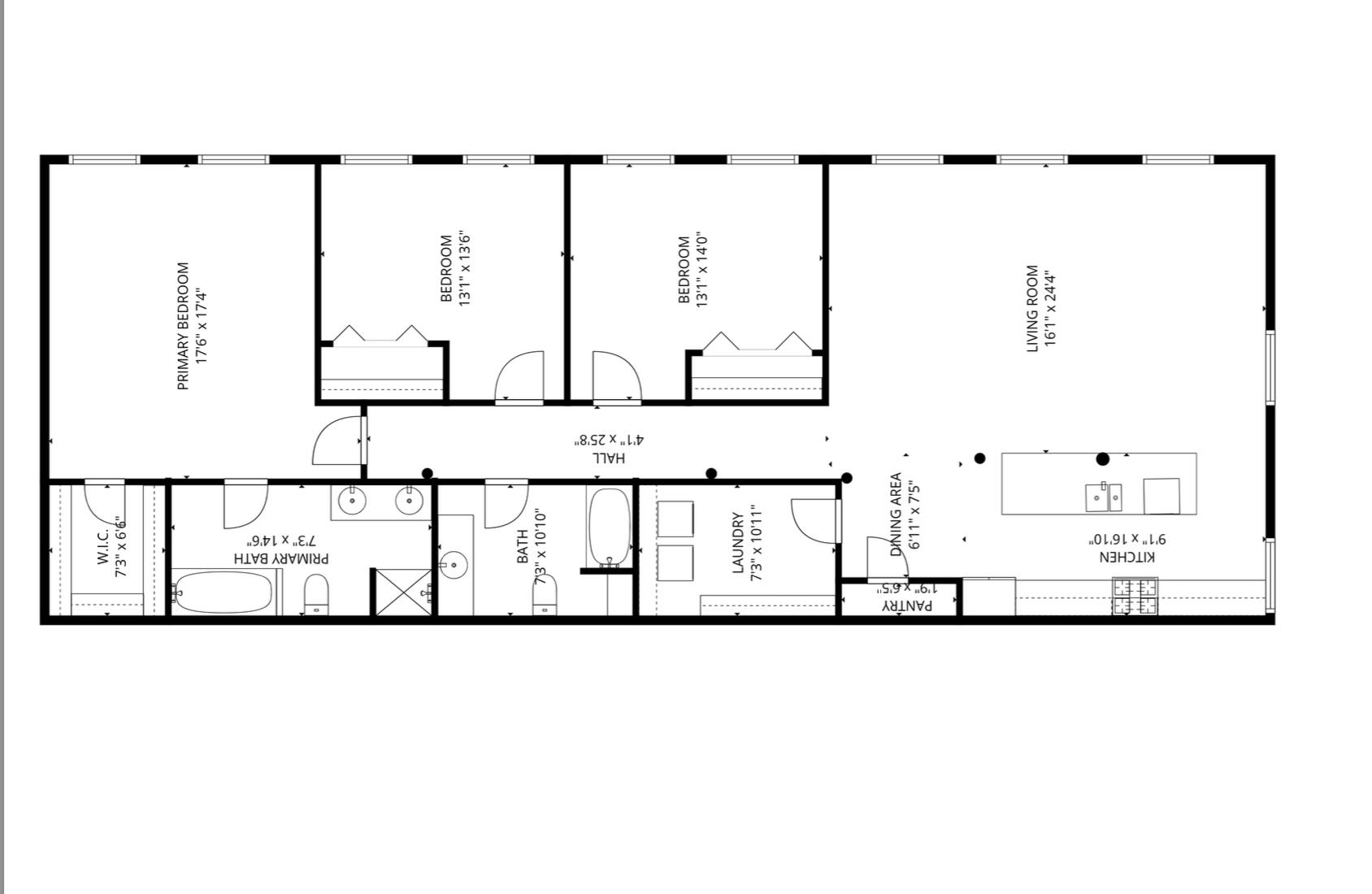
This rare three bedroom, two bathroom corner condo with water views from every single window is arguably the best unit at the Pepperell Mill Condos. It is one of only 3 three bedroom condos in the building. The condo exudes historic charm with its sky-high ceilings, exposed brick and beams, antique maple hardwood floors, and oversized windows. Modern conveniences include an upgraded kitchen with stainless steel appliances and granite countertops, central ducted heating and cooling, and an in-unit pantry/laundry room. The generous bedroom sizes easily accommodate king-sized beds and your personal decorating flair. North-east facing windows flood the brick-accented living room with morning light, creating a delightful, sunlit atmosphere. Imagine living vibrantly and connected in the heart of revitalized Biddeford, Maine. Enthusiasm is palpable for the chance to own a home within the Pepperell Mill community, where a dynamic blend of businesses, artists and residents co-exist harmoniously. Once an essential mill town powered by the Saco River, Biddeford has transformed into a creative hub, offering an ideal environment for individuals who want to be part of this exciting and growing tightly knit community. Situated on the scenic Saco River, this 17-acre property is conveniently located just a 20-minute drive from Portland, and a short distance to the Saco Transportation Center, which provides daily train service to Boston. Amenities include low HOA and utility fees (internet included!), parking space, solar energy, a dog park, dog wash, grilling areas, bike storage and EV charging. Enjoy the charm of small-town living paired with the vibrancy of a community brimming with talent. Biddeford is home to award-winning local businesses, restaurants, coffee shops, and bagel shops gaining recognition throughout the Northeast. Additional units are available to find your perfect place in this thriving community.

Listing Tools

Property Details of 2 Main Street, Unit 17-508

Property Details

Interior Features

Exterior Features

Utilities and Appliances

Community

Other Details

Map Location

Listing data is derived in whole or in part from the Maine IDX & is for consumers' personal, non commercial use only. Dimensions are approximate and not guaranteed. All data should be independently verified. ©2025 Maine Real Estate Information System, Inc. All Rights Reserved. equal opportunity housing logo   Privacy Policy

Julie Barros participates in ©2025 Maine Listings Internet Data Exchange program, allowing us to display other Maine IDX Participants' listings. This website does not display complete listings. Certain listings of other real estate brokerage firms have been excluded. Mortgage figures are estimates. Check with your bank or proposed mortgage company for actual interest rates. This product uses the FRED® API but is not endorsed or certified by the Federal Reserve Bank of St. Louis.

Hi there! How can we help you?

Contact us using the form below or give us a call.

Send Us A Message:

I agree to receive marketing and customer service calls and text messages from Julie Barros. To opt out, you can reply 'stop' at any time or click the unsubscribe link in the emails. Consent is not a condition of purchase. Msg/data rates may apply. Msg frequency varies. Privacy Policy.

Do not fill in this field:

This site is protected by reCAPTCHA and the Google Privacy Policy and Terms of Service apply.

Hi there! How can we help you?

Contact us using the form below or give us a call.

Send Us A Message:

Do not fill in this field:

This site is protected by reCAPTCHA and the Google Privacy Policy and Terms of Service apply.

Hi there! How can we help you?

Contact us using the form below or give us a call.

Send Us A Message:

Do not fill in this field:

This site is protected by reCAPTCHA and the Google Privacy Policy and Terms of Service apply.

Do not fill in this field:

This site is protected by reCAPTCHA and the Google Privacy Policy and Terms of Service apply.

Do not fill in this field:

This site is protected by reCAPTCHA and the Google Privacy Policy and Terms of Service apply.

Do not fill in this field:

This site is protected by reCAPTCHA and the Google Privacy Policy and Terms of Service apply.

$

Do not fill in this field:

This site is protected by reCAPTCHA and the Google Privacy Policy and Terms of Service apply.